工程跑线设备点位追踪
下面对图纸的简单分析

一、接线端子表达形式解读
1. 端子表示方法
图中下方的接线端子采用了多层表示法:
示例: 13 ─ 14 /5 21 ─ 22 /3 31 ─ 32 /4 43 ─ 44 /4
/5 /3 /4 /4: 这是关键!"/数字" 的两种可能含义
可能1:端子排位置编号
看图底部的端子排:
-X1E: 1 2 3 4 5 6 7 8 9 10...
/5 可能表示这条线连接到端子排的第5个物理位置
可能2:线束/电缆编号(最常见)
/5 表示这条连接属于"第5号线束或电缆"
理由:
-
相同数字的归类
:
- /3 的线在同一束
- /4 的线在同一束(注意31-32和43-44都是/4)
- /5 的线在同一束
-
对应左侧的线束标注: 图中底部左侧有:
-XX.WG1 -XX.WG3 ATxx.WC1 ATxx.WC2
注:这些WG、WC编号就是线束编号
-XX.WG1 和 -XX.WG3: 表示线束编号 ATxx.WC1, ATxx.WC2: 表示线束到控制柜的连接
二、如何验证和使用
方法1:找线束清单
完整的电气图纸通常有:
- 线束表/电缆表(Cable List)
- 会列出:线束编号 + 包含哪些导线
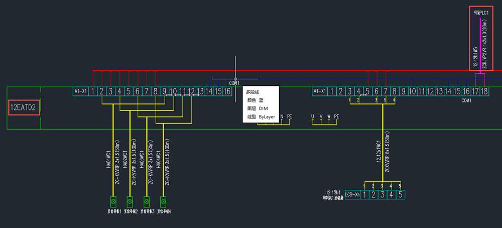
从管线表或电缆表中可以找到线束的走向从哪里到哪里去,下面以"匀料机1"为例;

管线编号是由"设备代号12.02b1+线束编号WS"组成,一般在设备的平面布置图中都有说明。

对于线束的走向从哪里到哪里去,可以查找"外部接线图"中查找得来;

总结:可以通过设备平面图,管线表,控制原理图,外部接线图,设备平面图,自控提资表等结合起来来追踪点位;
从管线表可得
| 序号 | 管线编号 | 编号含义 | 线束编号含义 |
|---|---|---|---|
| 1 | 11.07b1WS | 11.07b1+WS是由设备代号和线束编号组合而成。 | WS代表电流反馈 |
| 2 | 12EAT02WC1 | 12EAT02+WC1是由设备代号和线束编号组合而成。 | WC1、WC11代表开关量输入 |
| 3 | 12EAT02WC2 | 12EAT02+WC2是由低压柜代号和线束编号组合而成。 | WC2、WC12代表开关量输出 |
| 4 | 11.04b2WS1 | 11.04b2+WS1是由设备代号和线束编号组合而成。 | WS1代表模拟量输出 |
| 5 | 11.04b2WS2 | 11.04b2+WS2是由设备代号和线束编号组合而成。 | WS2代表模拟量输入 |
